• Haagis

    Soojakhaagis Tiki Treiler 2026 Tallinnas

  • Tüüp

    Soojakhaagis

  • Tootja

    Tiki Treiler

  • Linn

    Viimsi

  • Aasta

    2026

  • VIN kood

    V6AE3L09200000092

  • Reg. number

    598YPW

  • Kirjeldus

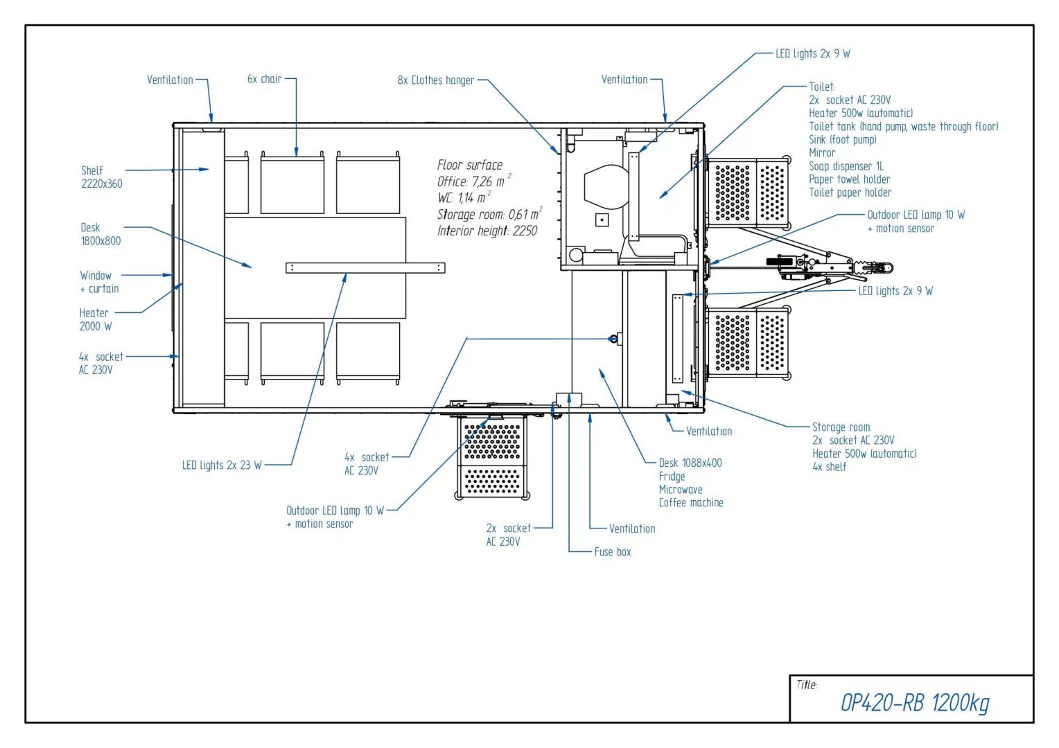
    Rendile anda 2026. aasta Tiki Treiler soojakhaagis!

    Sobib kasutamiseks kontori- ja puhkeruumina ehitusobjektil, üritustel või muuks ajutiseks töö- ja puhkeotstarbeks.
    Haagises on mugav puhkeruum kuni kuuele inimesele, eraldi tööriistaruum ning WC. Vooluvõrku (220 V) ühendades saab ruumid kiiresti soojaks integreeritud radiaatorite abil. Lisaks on soojak varustatud külmiku, mikrolaineahju ja kapselkohvimasinaga.

    Haagis antakse rendile puhtana ning tuleb tagastada puhtana. Lisateenused: välipesu 35 €, sisekoristus alates 25€.
    WC kasutamise korral lisandub WC tühjendus/pesu üks kord hinnaga 30 €.

    Pikem rendiperiood kokkuleppel.
    Võimalik pakkuda transporti, 1,25€/km, Tallinas/Harjumaal kokkuleppel. (Hinnad sisaldavad käibemaksu)

  • Detailid
    Silla tüüp: 2x Lehtvedru
    Tühimass: 1054kg
    Täismass: 1200kg
    Kandevõime: 146kg
    Kogulaius: 2.39m
    Kogupikkus: 5.74m
    Kogukõrgus: 2.98m
    Siselaius: 2.22m
    Sisepikkus: 4.12m
    Sisekõrgus: 2.25m
    Pistiku tüüp: 13-pin
    Pistiku üleminek olemas: Jah
    Välisriikidesse sõit lubatud: Ei

Broneeringu tühistamine: 1 nädal enne

Minimaalne rendi pikkus: 3 päeva

Maksimaalne rendi pikkus: 30 päeva

Ettebroneerimine lubatud kuni: 2 kuud


Kren T.

Omanik Ettevõte (käibemaksukohustuslane)

Kren T.

50€ /päev
50€
1 päev
225€
1 nädal
430€
1 kuu


Broneeringu detailid

Rendi hind
Periood

Haagise kättesaamine ja tagastamine

Viimsi, Eesti

Täpsem asukoht on nähtav kui broneering on lõpuni viidud



Asukoht

Täpsem asukoht on nähtav kui broneering on lõpuni viidud